Logements sociaux à st herblain

1 rue auriol, 44600 Saint-Herblain

55

Programme

8 logements sociaux
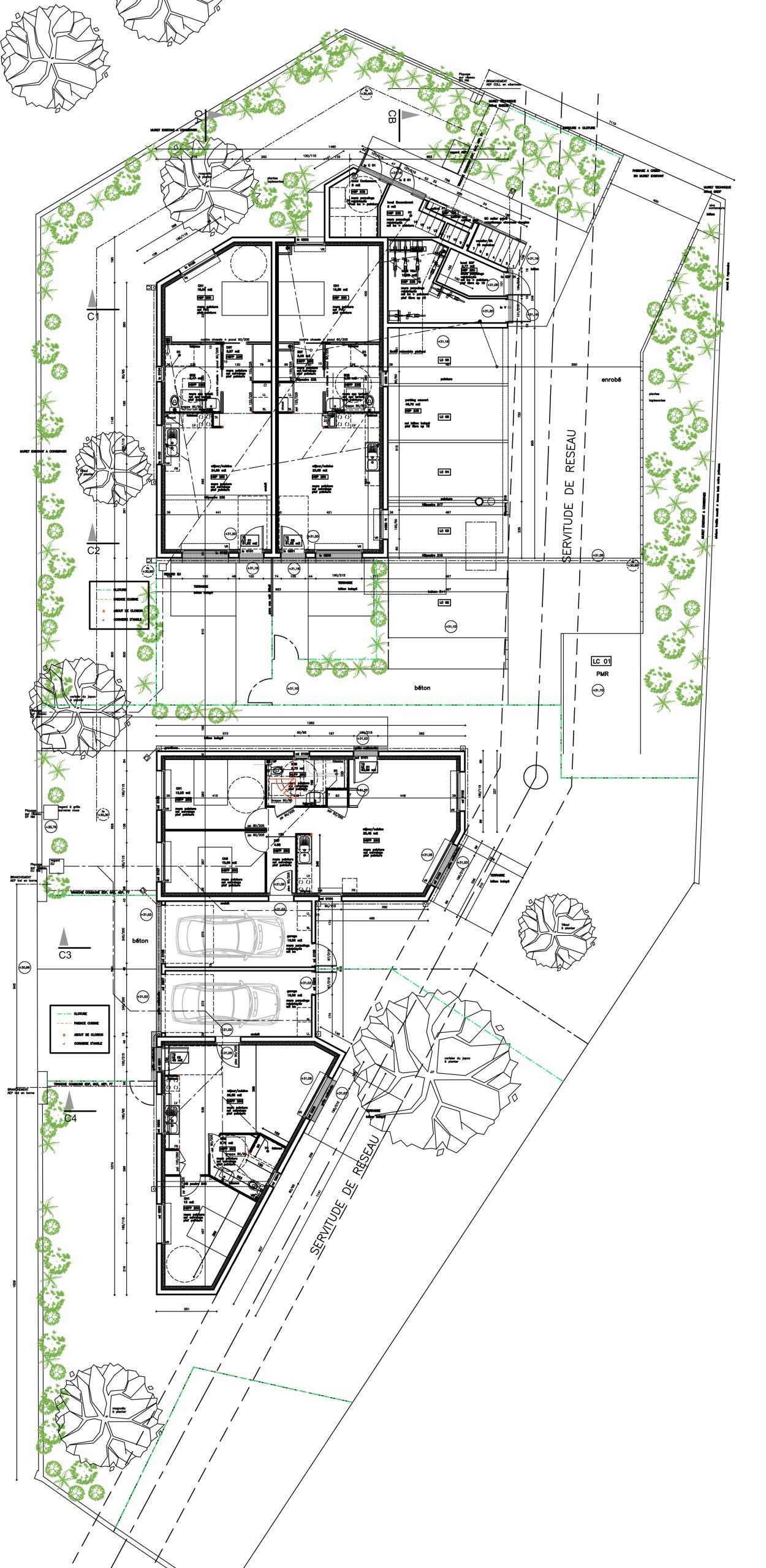
6 en collectif
2 en individuels

Concepteurs

  • Eric MARTIN Architecte

Commune

  • Saint-Herblain

Maître(s) d'ouvrage(s)

  • Habitat 44

Thèmes

  • Architecture

Année de réalisation

2025

Surface(s)

489 SP

Coûts

773 000

Documents

« exigence portée conjointement entre la maîtrise d’ouvrage et la maîtrise d’œuvre » :
Le projet a été porté par H44 avec le soutien de la mairie de Saint Herblain malgré les réticences du voisinage à voir des logement sociaux et adapté à un public spécifique, sans remettre en cause les choix de la maitrise d’œuvre
« approche attentive aux ressources et aux contextes, proposant des réponses adaptées aux enjeux environnementaux contemporains » :
Le projet est conforme à la RT – 10%. Il prend en compte une large partie en ossature bois et bardage bois naturel. Le chauffage aujourd’hui gaz est complétement évolutif et les logements individuels bénéficient de panneaux photo voltaïque en auto consommation.
« conception répondant aux usages actuels » :
les logement individuels bénéficient d’un grand jardin privatif. les logement collectif sont tous traversant et bénéficie d’un accès différencié (accès individuelle, par coursive, par couloir) et d’un espace extérieur différencié (jardin, balcon, loggia, terrasse)
« recherche sensible de qualité architecturale et paysagère » :
l’obligation de traiter les eaux pluviales à la parcelle nous a permis de proposer une noue paysagée mettant à distance le collectif de la rue. Notre collectif par son expression et son volume permet l’articulation entre le pavillonnaire existant et les projets plus denses à venir


Bureau(x) d’études : ALS, SCADE, ECMS
Photographe : eric martin

À voir aussi...

Ar
23

Ilot Bs6a

Nantes
Ar
43

Postes de secours

Pornichet
Ar
51
Ar
55